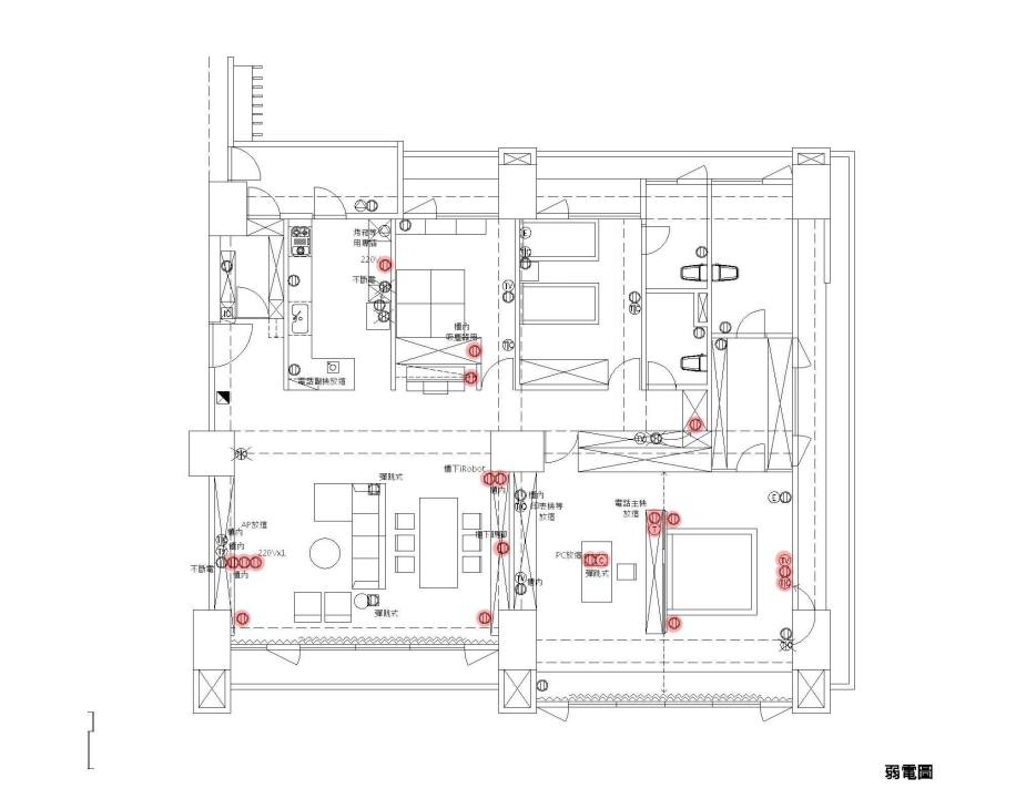
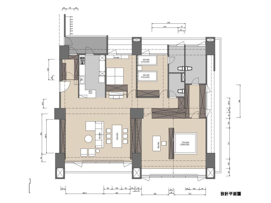
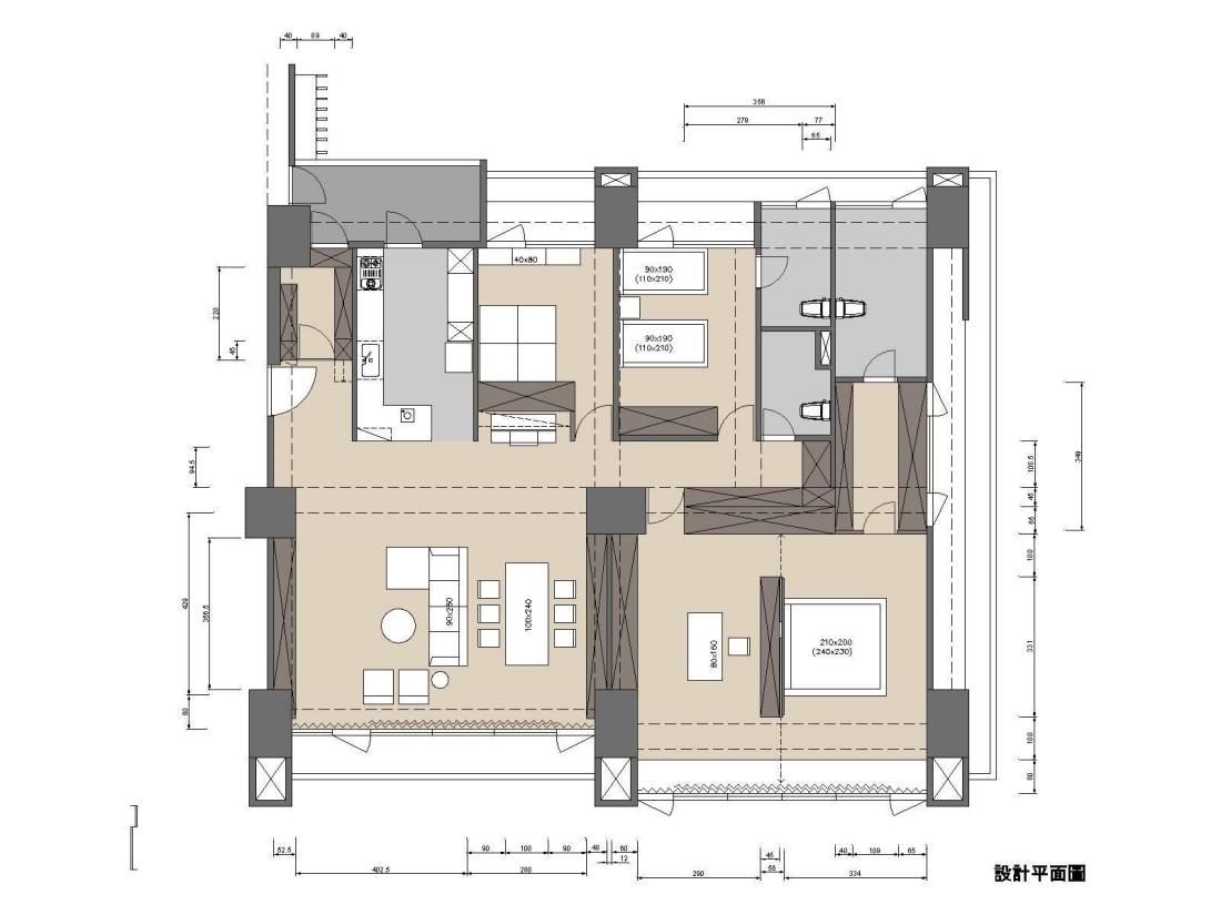
Teresa home – 設計圖 Teresa Ho 於 2017 年 12 月 27 日 我家的設計圖,含平面設計圖 、弱電圖 、 燈具圖、空調配置 有興趣的朋友可以看看囉~ 喜歡 正在載入... 分類: Teresa家裝潢&裝潢小巧思 文章分頁導航 上一頁: 上一篇文章: Teresa home – 走道下一頁: 下一篇文章: Teresa home – 客廳設計圖 分享此文: 分享到 X(在新視窗中開啟) X 分享到 Facebook(在新視窗中開啟) Facebook 發表留言 發表留言 取消回覆 Δ