月份: 十二月 2017

Teresa home – 客廳

客餐廳的實況v.s設計圖 (圖多) 期間溫尢和設計師花很多時間在討論音響,這實在讓我很無奈! 甚至帶我去圓山音 ...

Teresa home – 客廳設計圖

客餐廳的實況v.s設計圖 (圖多) 期間溫尢和設計師花很多時間在討論音響,這實在讓我很無奈! 甚至帶我去圓山音 ...

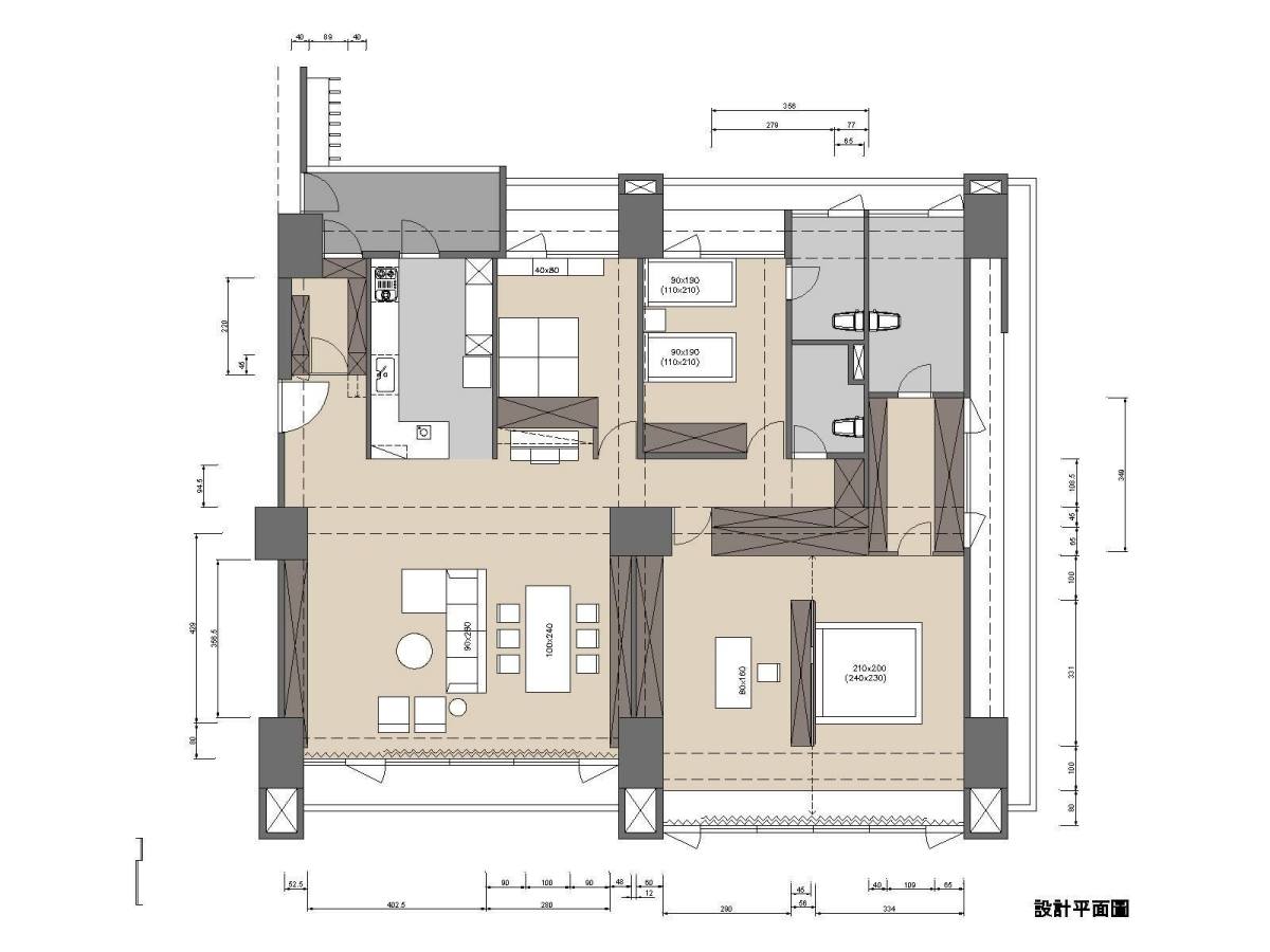
Teresa home – 設計圖

我家的設計圖,含平面設計圖 、弱電圖 、 燈具圖、空調配置 有興趣的朋友可以看看囉~

Teresa home – 走道

利用走道間的櫃體放置小孩不是很美觀的作品 ~ 小孩從學校帶回家的美勞或樂高作品,都希望擺在展示櫃上讓大家欣賞, ...

Teresa home -主臥

空蕩蕩的主臥,只有床和電視。 主臥的設定就是要空,因為我要一夜好眠。 整面牆的衣櫥、整面窗的臥榻、獨立更衣間通 ...

Teresa home -廚房

讓人內心掙扎的廚房 建商附的廚房讓人真的很不舒服,丟可惜不丟又礙眼。 1. 吧台的高度不對又不能改 --> ...

台中王小姐Kronotex 12mm Mammut D2999完工照

D2999 胡桃木色搭配白色櫃體超對味的)

高雄李先生Kronotex 12mm Mammut D2800 完工照

高雄李先生12mm Mammut D2800 完工照 一般地板是最後施做的,但其他工種delay導致地板提前施 ...

新北胡先生 Kronotex 12mm Mammut D4752完工照

利用高低差分隔『落塵區』與『公共空間』也不錯 全室使用造型踢腳板

客人問:只買產品(材料)不要服務(施工)可以嗎?

當然可以。 小宅一直把『產品』和『服務』分開計價,不管是地板還是傢俱,讓客人選擇保有彈性。 產品品質看品牌大概 ...